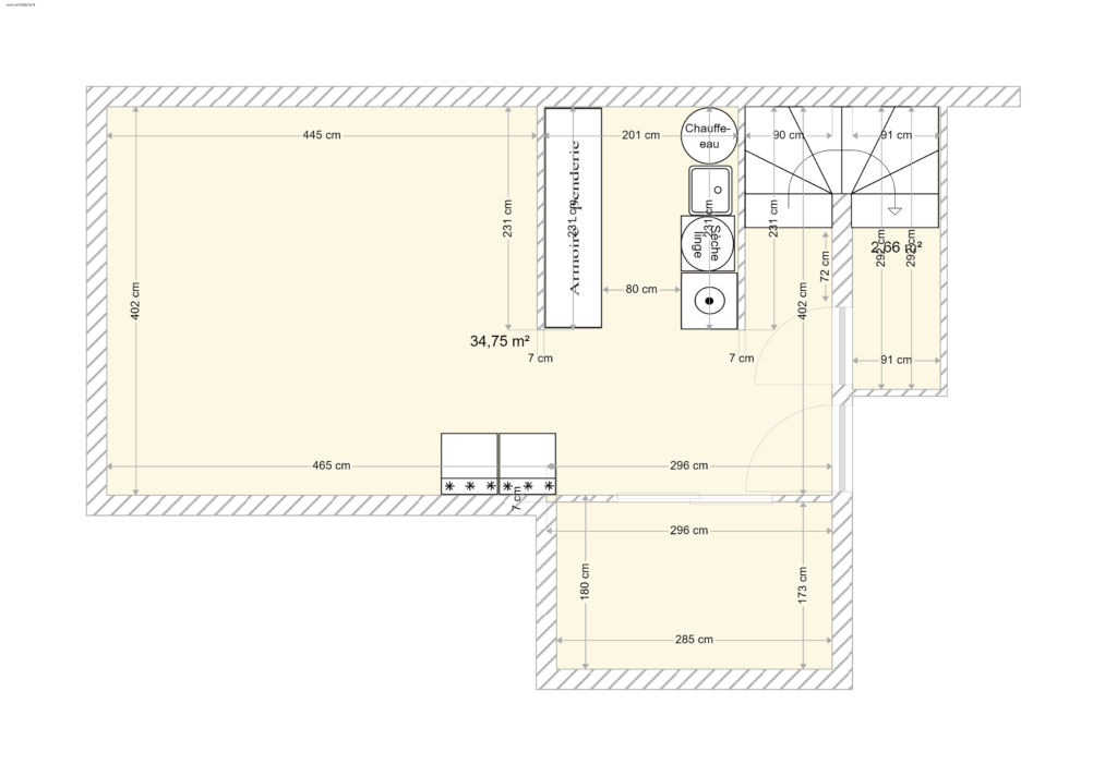
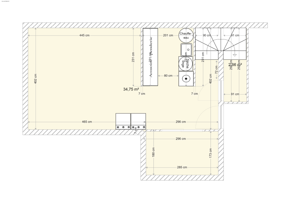
Les sous-sol de ce pavillon a été totalement transformé. Initialement c’était un garage avec une partie consacrée au stockage. Cette zone a été restructurée. Après travaux elle permet d’accueillir : une buanderie, des rangements, une très belle cave à vin et bien sur une petite zone de stockage. L’ensemble du local a été isolé, carrelé et peint.
A Longpont sur orge en juin 2023



