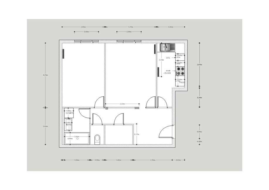
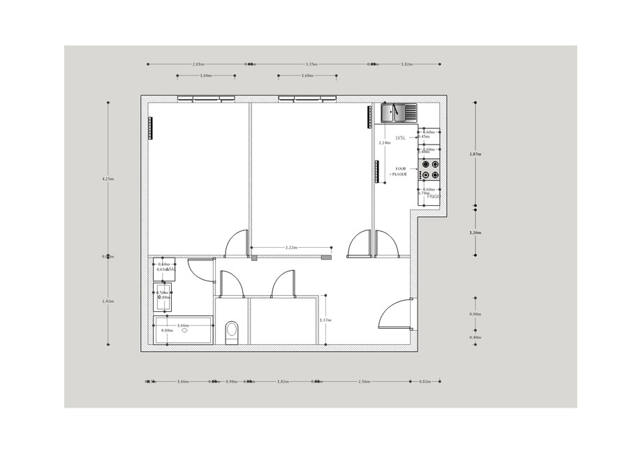
A Paris 19ème en Août et Septembre 2017 ce F2 a été restructuré.
L’entrée, le séjour et la cuisine ont été réunis en un seul espace de 30m². La salle de bains a été relookée, l’électricité remise aux normes et la cuisine aménagée.
Le projet a été conçu de manière très simple car ce produit est destiné à la location.









